TEXTO

El proyecto para el nuevo edificio del Campus Alcorta de la Universidad Torcuato Di Tella se ha pensado desde el conjunto hacia la parte.
Partiendo del análisis pormenorizado las condiciones de todo el campus, se ha ido arribando paulatinamente a cada una de las decisiones particulares del nuevo proyecto, en un proceso de verificación continua las relaciones entre la propuesta, lo existente y su sinergia final.

Volumetría y superficie edificada
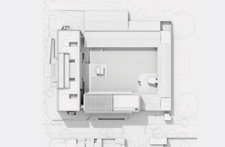
La volumetría del nuevo edificio es determinada por una serie de factores preexistentes que definen sus dimensiones generales: coincide exactamente en planta con la pisada de los galpones que se demuelen, lo cual fija la base de la extrusión volumétrica que llega hasta la altura del nuevo nivel del edificio Alcorta en la mitad más próxima al mismo (nivel máximo permitido para la nueva construcción) y la altura original del antiguo parapeto de hormigón en la otra mitad.

Este desnivel en el perfil superior del edificio permite no solo respetar el requisito de alturas máximas y tener una terraza accesible, sino también definir una relación que media con las alturas del edificio Alcorta por un lado (la altura original y la nueva) y la menor altura de la zona de galpones que cierra el claustro logrando ,para el estado final del campus,una armonía de jerarquías del alturas edilicias de todo el conjunto.

Hacia el norte, el nuevo edificio mantiene su distancia del original ,casi 6 metros, lo cual permite que las aulas y espacios existentes sigan funcionando y ademas que la fachada interna del histórico edificio Alcorta se pueda visualizar prácticamente en su totalidad.
Hacia el sur, en la adyacencia con el sector de galpones a dos aguas intervenidos por Clorindo Testa , se propone socavar la masa en sus dos niveles inferiores, generando un voladizo sobre el mismo que resuelve este encuentro con elegancia formal al mismo tiempo que enmarca la salida de emergencia y entrada de servicio al playón central y logra separar las fundaciones entre ambos edificios para evitar interferencias estructurales.

DISTINCIONES

– Proyecto Finalista

EQUIPO

Diego Arraigada, Gerardo Caballero, Agustina Coulleri, Pablo Gamba, Tommaso Giovannoli, Florencia Meucci, María Victoria Militello, Gabriel Reyes, Luciano Scarponi, Florencia Sobrero, Bruno Bolognesi.

CONSULTORES

Estructura: Ing. Santiago Landucci, Arq. Lucia Landucci - Instalación Termomecánica: Ing. Roberto Volpatti - Instalación eléctrica: Ing. Nelson Geraci - Iluminación: Fernando Piedrabuena - Sustentabilidad: Lic. Rubén Piacentini, Arq. Natalia Feldman