TEXTO

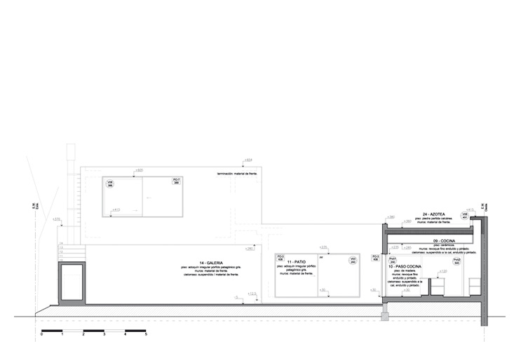
El solar se encuentra ubicado en un barrio residencial de baja densidad en las afueras de la ciudad de Rosario y en uno de sus lados cuenta con una añosa hilera de cipreses, paralela a la cual se desarrolla el acceso. Los requerimientos programáticos y los condicionantes del lugar derivaron en una reelaboración de la tipología de casa-patio, cuyo diagrama de claustro se modifica en planta y en corte para:

1. acceder a la vivienda a través del patio.
2. generar una galería abierta al jardín, con sol del norte.
3. ubicar una habitación con acceso independiente en planta alta.
4. destinar un volumen de servicios para la piscina.

Interiormente, las distintas áreas domésticas y su circulación se desarrollan en forma lineal alrededor del patio. Las aberturas recorren todo el perímetro de la casa según las necesidades del programa y en ocasiones se alienan para obtener vistas continuas hacia el jardín. Paneles móviles de cerramiento de mutilaminado fenólico dotan a la casa de oscurecimiento y seguridad. De acuerdo a la posición de estos paneles, el carácter de la casa varía continuamente. Se ha utilizado un revoque monocapa elástico, continuo, blanco y con textura, de leve tinte verdoso, que unifica todas las superficies interiores y exteriores.

DISTINCIONES

– Distinguida en la I Bienal Internacional de Arquitectura Argentina (BIAAR) 2014

– Seleccionada para la XV Bienal Internacional de Arquitectura de Buenos Aires. Argentina, 2015

EQUIPO

Diego Arraigada, Pablo Gamba (asociado), Lucia Landucci, Ruxandra Stroe, Maria José Tasada

CONSULTORES

Ing. Vanesa Vernaschi, Ing. Joel Schnitman

EMPRESA CONSTRUCTORA

CyK ICSA

SUPERFICIE CONSTRUIDA

260 m2

FOTOGRAFÍAS

Gustavo Frittegotto