TEXTO

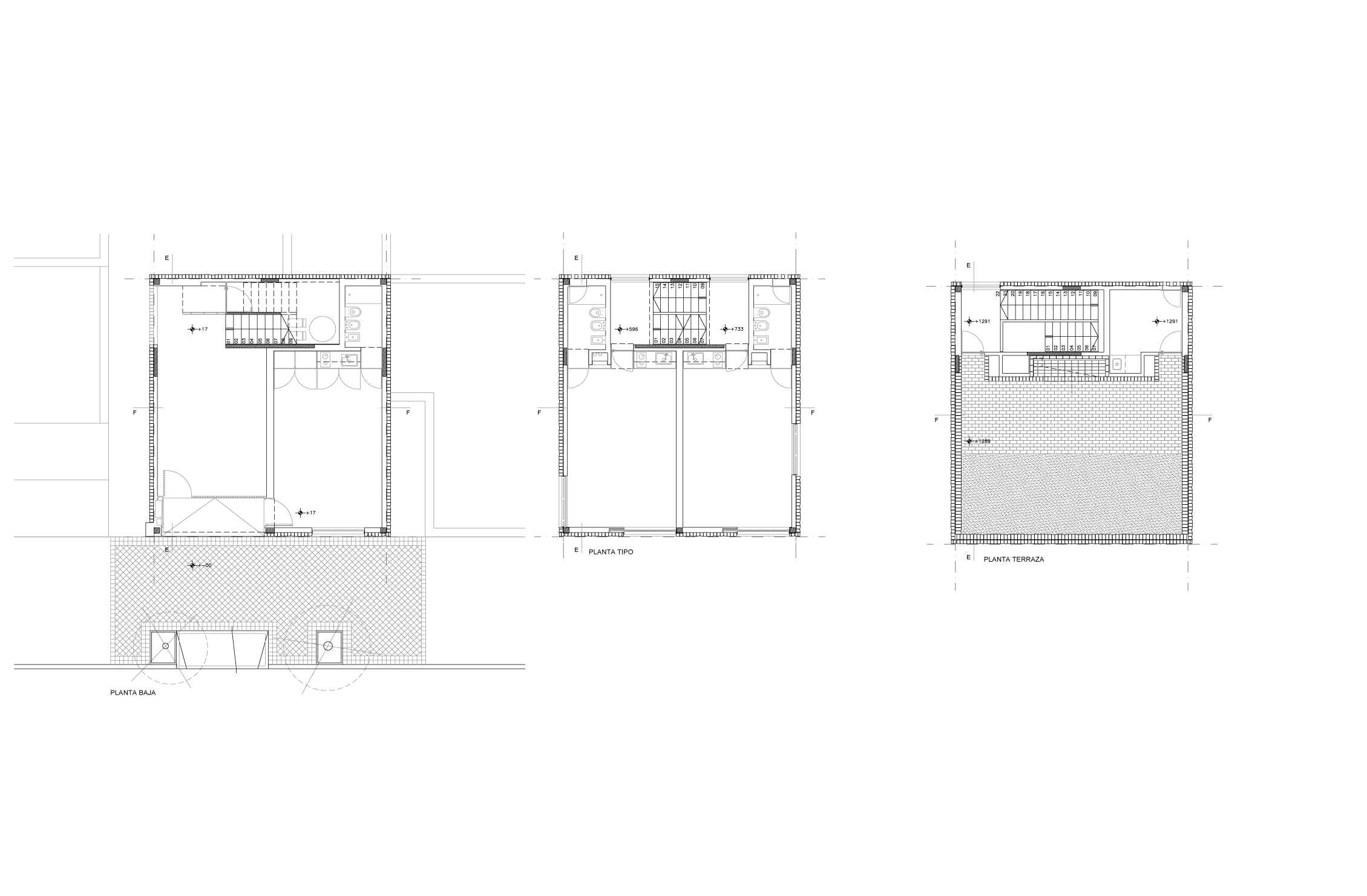
La extrusión vertical de un pequeño lote de 8 x 9 metros con orientación norte define el volumen del edificio. A partir de una división longitudinal interior en dos crujías iguales, se organizan siete unidades dispuestas en niveles apilados. La planta y el corte optimizan su relación y cada crujía se desplaza medio nivel verticalmente para utilizar los descansos de las escaleras como acceso a las unidades. El carácter y tamaño de los espacios habitables admite su uso tanto como vivienda mínima o lugar de trabajo, cada uno dotado de dos grandes ventanas, una para acceso de luz difusa desde las medianeras y otra para luz y ventilación sobre el frente. La piel exterior consta de ladrillos partidos a la mitad, exponiendo hacia afuera la textura interior del ladrillo, dejando ver su composición interna. Esto dota al volumen de una expresividad de colores entre anaranjados, negros y rojos, y una textura rugosa a la vez extraña y familiar. En la terraza los muros se elevan hasta definir un espacio abierto al cielo en donde una terraza jardín recupera las especies vegetales que crecían originalmente en éste fragmento de tierra.

Ubicado en una zona cuya densidad edilicia está en aumento, el edificio ocupa un pequeño lote de 8×9 metros con orientación norte. La necesidad de optimizar los espacios dentro de las regulaciones urbanísticas vigentes determina una configuración en dos crujías longitudinales iguales, que organizan siete unidades dispuestas en niveles apilados. La planta y el corte optimizan su relación y cada crujía se desplaza medio nivel verticalmente para utilizar los descansos de las escaleras como acceso a las unidades. El carácter y tamaño de los espacios habitables admite su uso tanto como lugar de trabajo o vivienda mínima, cada uno dotado de dos grandes ventanas, una para acceso de luz difusa desde las medianeras y otra para luz y ventilación sobre el frente. La piel exterior consta de ladrillos partidos a la mitad, exponiendo hacia afuera la textura interior del ladrillo para dejar ver su composición interna. Esto dota al volumen de una expresividad de colores entre anaranjados, negros y rojos, y una textura rugosa e imperfecta a la vez extraña y familiar. En la terraza los muros se elevan y definen un espacio abierto al cielo en donde una terraza ajardinada recupera las especies vegetales propias de la región.

 

EMPRESA CONSTRUCTORA

PH

FOTOGRAFÍAS

Manuel Cucurell, Ana Delgado, Federico Cairoli, Gustavo Frittegotto.